0
INTEGRAL天正寺 105
予約中
47,000
円
富山市 天正寺 1340番地1
築5年 / 木造 2階建て / 1階
富山地方鉄道上滝線 不二越駅 徒歩25分
地方鉄道バス 天正寺 徒歩 4 分
共益費
4,000
円
敷金
0
円
礼金
47,000
円
人気の天正寺エリア。近隣商業施設が多くて便利です♪築浅できれいなお部屋です!光インターネット無料やIHクッキングヒータ-など人気設備充実の人気物件ですので、お早目にご検討下さい!!
プリント
見積もり
物件詳細
間取り
K 4.3 帖
洋室 9.6 帖
/ 32.97m
2
築年月
2020/05
構造
木造 2階建て / 1階
取引態様
代理
その他賃料
SP加入金28,600 円
SP会費3,300 円
定額水道料3,080 円
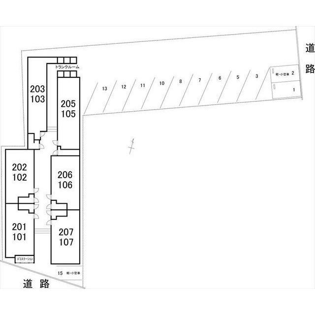
駐車場
3,300円
損保
要
退去
退去済み
特徴・設備
ネット使い放題
トランクルーム
Wi-Fi/有線LAN
ウォークインクローゼット
室内物干し
オートロック
TV付インターフォン
浴室乾燥機
シューズボックス
IH
温水洗浄便座
独立洗面台
バス・トイレ別
エアコン
照明器具
CATV
住宅火災警報器
角部屋
募集中のお部屋
206
ワンルーム / 34.05m
2
47,000
円
取り扱い店舗
アーバンホーム 富山店
詳細情報
お気に入りに追加
問い合わせる
© 2025 URBAN HOME